✨AI算命大師
議題選項
議題評分
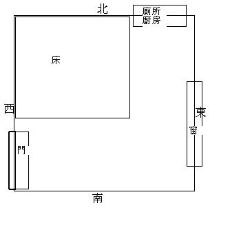
#333301 - 2004-02-23 14:35:54 好倒楣哦!附圖 請大師們幫忙看看我的房子該怎樣擺設才不會那麼倒楣?
彼岸花 離線
一元復始
註冊: 2003-07-30
文章數: 1102
來自: 糖果屋*南瓜車
我的床太大了 房子太小 所以只能這樣擺設
另外 我有一張書桌 還有一快大鏡子 還有電腦等
不曉得怎樣擺好
之前擺的 書桌沒在牆邊 沒靠山 電腦反光鏡又照著床 現在我都移開了 但因房子太小 所以不知道怎樣擺風水會好些
另外 我想擺些風水陣 比如說擺些金魚或植物 或帖揮春 不知道是否可以在睡覺的地方這樣布置 如果可以我該放些什麼東西在什麼位置
我真的過得很不如意 很久都找不到工作 也沒男朋友 也沒錢 考試又不好考
麻煩大家指教一下
多謝啊!


附加檔案
459096-my room.jpg


_________________________
━━━─┈ -☆' 寧願信發夢太早 不信期望會偏高
↑回到頂端↑
#333302 - 2004-02-25 15:04:42 Re: 好倒楣哦!附圖 請大師們幫忙看看我的房子該怎樣擺設才不會那麼倒楣?
臧拔拉 離線
或躍在淵
註冊: 2003-09-21
文章數: 306
那房間似乎沒什麼可以利用的空間
而且風水乃是助緣
尚須配合命主的生辰八字加以運用
並非相同的風水對每一個人都是一樣的
..............
健議閣下請一本《地藏菩薩本願經》回去讀誦
蓋因此世間一切產物,皆由大地而生。而大地之母(堅牢地神,此神俱大神力,為一切土地善神之主。釋迦牟尼佛在菩提樹下悟道之時,受天魔波旬所擾,當釋迦牟尼佛以手觸摸大地之時,堅牢地神即現身護持,並為世尊作證。)即為地藏菩薩之大護法(詳見《地藏菩薩本願經﹒第十一﹒地神護法品》),故供養地藏經象、或讀誦地藏菩薩的經典、或稱唸地藏菩薩的聖號,自可得一切土地善神護持,令家中眷屬安樂,無諸橫事發生,又因世間財富皆因地而有,得大地之母的護持,自然亦可得世間財富。當然,這些也只能說是善巧方便,地藏菩薩的不可思議功德,乃能拔除眾生之根本業緣,消除宿世業障因果本末,斷三惡道之門。
_________________________

落葉歸根。八風無常。唯持戒香。芳馥永存。
↑回到頂端↑
#333303 - 2004-02-29 04:37:45 Re: 好倒楣哦!附圖 請大師們幫忙看看我的房子該怎樣擺設才不會那麼倒楣?
彼岸花 離線
一元復始
註冊: 2003-07-30
文章數: 1102
來自: 糖果屋*南瓜車
回應:

那房間似乎沒什麼可以利用的空間
而且風水乃是助緣
尚須配合命主的生辰八字加以運用
並非相同的風水對每一個人都是一樣的





我買了些富貴竹和金魚來養 但現在看來 是不怎麼可行啊 他們枯的枯死的死
我看我得找個房子搬才行
我的八字金水旺 喜火和木 南方好
_________________________
━━━─┈ -☆' 寧願信發夢太早 不信期望會偏高
↑回到頂端↑
#333304 - 2004-03-17 16:58:33 Re: 好倒楣哦!附圖 請大師們幫忙看看我的房子該怎樣擺設才不會那麼倒楣?
青木 離線
終日乾乾
註冊: 2003-05-12
文章數: 125
這個房的局真的很不好,請你先暫時把床頭朝向北方(就是頭朝北,腳朝南方),書桌擺在背對窗的地方(即可看見門,廁所在右手邊),鏡子上蓋布,廁所門外請剪一塊青色的布(要能蓋過整個門),廁所內要保持通風,可以養盆黃金葛在裡面..還有不要養魚啦....濕氣已經太重了..
你的廁所和廚房都在一起當然賺不到錢呀(而且要小心火災,你的腸胃可能也比較容易出問題)...最好換房子
↑回到頂端↑
#333305 - 2004-03-18 13:53:18 Re: 好倒楣哦!附圖 請大師們幫忙看看我的房子該怎樣擺設才不會那麼倒楣?
彼岸花 離線
一元復始
註冊: 2003-07-30
文章數: 1102
來自: 糖果屋*南瓜車
回應:

這個房的局真的很不好,請你先暫時把床頭朝向北方(就是頭朝北,腳朝南方),書桌擺在背對窗的地方(即可看見門,廁所在右手邊),鏡子上蓋布,廁所門外請剪一塊青色的布(要能蓋過整個門),廁所內要保持通風,可以養盆黃金葛在裡面..還有不要養魚啦....濕氣已經太重了..
你的廁所和廚房都在一起當然賺不到錢呀(而且要小心火災,你的腸胃可能也比較容易出問題)...最好換房子




可是已經找不到這樣又安全又不貴交通又便利的房子了哦
床頭朝北方 就頂著廁所的牆了哦
如果書桌背對窗 這樣側面就沖廚房廁所了哦
而且 這些出租房子都是很窄 廚房廁所都是在一起的哦?
_________________________
━━━─┈ -☆' 寧願信發夢太早 不信期望會偏高
↑回到頂端↑
#333306 - 2004-03-18 15:57:37 Re: 好倒楣哦!附圖 請大師們幫忙看看我的房子該怎樣擺設才不會那麼倒楣?
青木 離線
終日乾乾
註冊: 2003-05-12
文章數: 125
1.床頭背對門更不好.
2.書桌側面對廁所,最少被門沖或背對門為佳.
3.如果這房間有你說的這麼好,那麼你為什麼會來此發問ㄋ,不要本末倒置摟.
↑回到頂端↑
#333307 - 2004-03-19 04:59:17 Re: 好倒楣哦!附圖 請大師們幫忙看看我的房子該怎樣擺設才不會那麼倒楣?
彼岸花 離線
一元復始
註冊: 2003-07-30
文章數: 1102
來自: 糖果屋*南瓜車
回應:

1.床頭背對門更不好.
2.書桌側面對廁所,最少被門沖或背對門為佳.
3.如果這房間有你說的這麼好,那麼你為什麼會來此發問ㄋ,不要本末倒置摟.




這房子格局就是特別不好 那些床和書桌怎麼擺都不是
但確實是挺難找到便宜又安全 交通便利的房子 我現在住的房子都滿足了這些看得見的好處
但就是風水太差 運氣太滯
_________________________
━━━─┈ -☆' 寧願信發夢太早 不信期望會偏高
↑回到頂端↑
#333308 - 2004-03-22 07:59:25 Re: 好倒楣哦!附圖 請大師們幫忙看看我的房子該怎樣擺設才不會那麼倒楣?
黃半仙 離線

一路發發發
註冊: 2002-01-16
文章數: 18670
來自: 台北市/東湖(手機: 09351...
呵呵
此文是否移至風水版較妥當
_________________________
*觀自在 緣無攀 見如來*
有緣相遇 詩詞隱寓 請細尋思 有份當瞭

教學 與 進一步詳論者,潤金收費,請聯絡Mail 下址
Hspace03949@gmail.com

請詳我的論壇:

http://eternity.why3s.net/index.php

紫林居士 斗數命例輯..索引 .陸續增補
紫林居士 陽宅準確案例輯-2(A...;extra=page%3D1

紫林居士的一些風水圖文寓意詩.. -索引
紫林居士-12生肖分類 姓名案
↑回到頂端↑
#333309 - 2004-03-26 09:11:37 好急好急啊
彼岸花 離線
一元復始
註冊: 2003-07-30
文章數: 1102
來自: 糖果屋*南瓜車
回應:

1.床頭背對門更不好.
2.書桌側面對廁所,最少被門沖或背對門為佳.
3.如果這房間有你說的這麼好,那麼你為什麼會來此發問ㄋ,不要本末倒置摟.




可是
我的廁所也有門哦 如果床頭靠廁所壁的話 也等於是靠門啊 那這樣還是靠廁所牆壁比靠門的牆壁好嗎?
我的房間很小 如果書桌移至背靠窗的話 至少會有一點點沖門 而且不僅僅是側沖廁所 而是在廁所旁邊了哦
那我該怎樣做呢
這半個月來都有努力看哪里有房子租 但以我目前的能力和實際情況來講實在找不到比這更適合的房子了哦
我這房子快到期了 請快快幫忙看看好不
_________________________
━━━─┈ -☆' 寧願信發夢太早 不信期望會偏高
↑回到頂端↑
#333310 - 2004-03-26 09:28:45 Re: 好急好急啊
青木 離線
終日乾乾
註冊: 2003-05-12
文章數: 125
這篇文應該移至風水版會有更多回應喔..

劣者就風水方面的建議最多也是如此...

劣者就你風水問題有試占一卦,卦象很不好...,換屋為佳
你暫時可於室內東方懸掛十一面觀音咒輪...

願你諸事吉祥.
↑回到頂端↑
#333311 - 2004-03-26 11:07:09 Re: 好急好急啊
彼岸花 離線
一元復始
註冊: 2003-07-30
文章數: 1102
來自: 糖果屋*南瓜車
我剛開始就是在風水版發帖的
根本就沒人搭理
_________________________
━━━─┈ -☆' 寧願信發夢太早 不信期望會偏高
↑回到頂端↑





本站是個命理討論的園地,如果您要問命,請務必詳閱各板板規,遵守發問規則,不要只留個生日或是命盤, 其他什麼都沒提。貼命盤的方法請特別注意算完命盤後的文字說明,不要貼個沒人看懂歪七扭八的命盤, 貼錯命盤及未遵守板規者,文章很有可能被不預警刪除 另外,如果您提了問題,而有人回覆的話,不論對與錯,請務必多上來回應論命者, 我們不歡迎那種提了問題就等人回答,也不回應的人。我們需要的是,「良好的互動」及「長期的追蹤」。
本站大多數的討論區都得要註冊才能發言,您若是要張貼討論,請務必註冊為使用者, 如果您忘了您的密碼,請在登入」的畫面, 輸入您的帳號,再按一下我忘記我的密碼了」, 此時系統會寄一封信到您當時註冊的 Email 信箱裡面, 裡面則附有一個臨時密碼,請您拿到密碼後用此臨時密碼登入。登入之後可以在 編輯個人檔案」裡面修改成您習慣的密碼。
logo
欣洋網路有限公司