✨AI算命大師
議題選項
議題評分
#734219 - 2006-06-02 03:51:21 請看社區圍牆對家裡有什麼影響?
lacie 離線
或躍在淵
註冊: 2004-12-27
文章數: 330
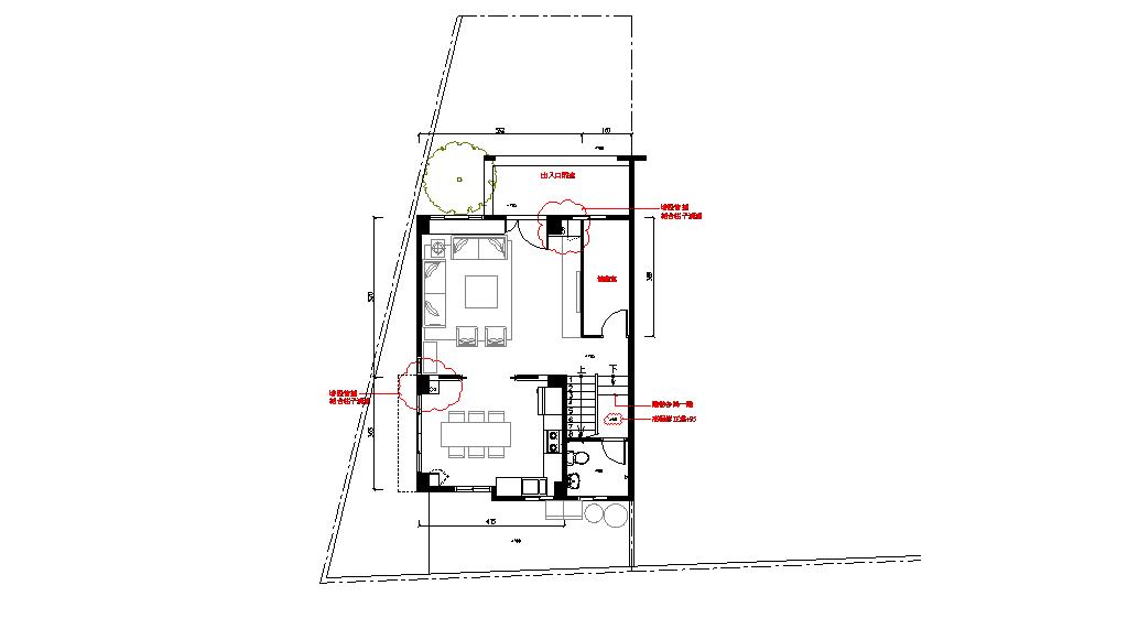
如圖所示,我家是最後一戶,在社區的左下角
此為雙併戶,因此我家的右邊還有一戶緊連
左側及後側皆為社區的圍牆
但社區左側圍牆為歪斜的,吃到家門口院子的一些地方

原本設計為每戶前方可停二台車,並留有一個前庭及側院
但因圍牆歪斜的關係,前庭無法使用,只能停上二台車
並且左方的側院也造成了三角形的歪斜現象

前院茉綠色圓形的圖案是一顆樹,原本這顆樹應該種在院子前面
但因為圍牆的關係,建商要種在我家的院子裡面

請問1 圍牆的歪斜對於房子有沒有影響
2 這顆樹種的地方會不會有影響?

謝謝!




附加檔案
2102764-1F.jpg




編輯者: Wilson 韋爾生 (2006-06-02 04:25:03)
↑回到頂端↑
#734220 - 2006-06-02 04:20:54 Re: 請看社區圍牆對家裡有什麼影響?
文文哥 離線
或躍在淵
註冊: 2005-06-05
文章數: 353
來自: ip隐形人
圖太細
_________________________
師承密法類必修科目
紅教大圓滿

師承類數科目
風水,八字,皇極鐵板大定數,面相,測字,密教占星

師承法術類科目
密宗揭摩法,金剛護法,仙術,茅山,符仔術

閒趣類科目
書法,古琴
↑回到頂端↑
#734221 - 2006-06-02 05:09:56 Re: 請看社區圍牆對家裡有什麼影響?
vicky.baby 離線
雙喜臨門
註冊: 2002-06-24
文章數: 2437
來自: ESP超感知力研究院 mana
客廳當客廳使用14分
廚房當廚房27分
右上房間當倉庫使用55分
右下廁所37分
圍牆影響1樓氣場
數木亦再次降低1樓氣場
(評分標準滿分100分 好風水至少需60分)

2.3樓已回私信
_________________________
ESP超感知力研究院 版主
兼任Destiny命理網之夢版版主
[color:"red"] mana [/color]
[color:"green"]收費:紫微斗數.超感知力(ESP).訊息傳遞法.風水鑑定.彩光療法.靈氣.解夢.潛能開發......
網路潤金 600元
有興趣了解自己 想感受超感知力給你的答案者 請寄信至vicky.baby信箱[/color]


歡迎參觀 我的部落格---ESP運用在紫微斗數
↑回到頂端↑
#734222 - 2006-06-02 05:41:07 Re: 請看社區圍牆對家裡有什麼影響?
lacie 離線
或躍在淵
註冊: 2004-12-27
文章數: 330
回應:

客廳當客廳使用14分
廚房當廚房27分
右上房間當倉庫使用55分
右下廁所37分
圍牆影響1樓氣場
數木亦再次降低1樓氣場
(評分標準滿分100分 好風水至少需60分)

2.3樓已回私信




您眼睛利害,因為客廳的面寬太長,只好隔一道假木牆
右上房間的確當倉庫使用,電視置於假木牆上,但倉庫也可能闢成和室使用
客廳也只能當客廳使用,但看來客廳分數是稍低些
依您看來,那顆樹應當砍掉?

又若,我換戶換到我隔壁那一戶呢?
隔壁戶的位置圖恰好與我這戶的相反
↑回到頂端↑
#734223 - 2006-06-02 05:43:26 Re: 請看社區圍牆對家裡有什麼影響?
lacie 離線
或躍在淵
註冊: 2004-12-27
文章數: 330
人說前窄後寬為聚財風水
像我家這樣的情況能視為前窄後寬嗎?
↑回到頂端↑
#734224 - 2006-06-02 05:46:51 Re: 請看社區圍牆對家裡有什麼影響?
lacie 離線
或躍在淵
註冊: 2004-12-27
文章數: 330
再放一次看會不會好一點


附加檔案
2103031-1f.jpg


↑回到頂端↑
#734225 - 2006-06-02 08:07:01 Re: 請看社區圍牆對家裡有什麼影響?
vicky.baby 離線
雙喜臨門
註冊: 2002-06-24
文章數: 2437
來自: ESP超感知力研究院 mana
隔壁
客廳當客廳使用45分
廚房當廚房55分
左上房間當倉庫使用92分
左上房間當客房使用45分
左下廁所53分

(評分標準滿分100分 好風水至少需60分 60分以上不好找)
_________________________
ESP超感知力研究院 版主
兼任Destiny命理網之夢版版主
[color:"red"] mana [/color]
[color:"green"]收費:紫微斗數.超感知力(ESP).訊息傳遞法.風水鑑定.彩光療法.靈氣.解夢.潛能開發......
網路潤金 600元
有興趣了解自己 想感受超感知力給你的答案者 請寄信至vicky.baby信箱[/color]


歡迎參觀 我的部落格---ESP運用在紫微斗數
↑回到頂端↑
#734226 - 2006-06-07 16:39:02 Re: 請看社區圍牆對家裡有什麼影響?
宅淹淹 離線
見龍在田
註冊: 2006-05-06
文章數: 26
家中男人較不順<br />樹種在左後方較理想
↑回到頂端↑
#734227 - 2006-06-08 08:01:30 Re: 請看社區圍牆對家裡有什麼影響?
lacie 離線
或躍在淵
註冊: 2004-12-27
文章數: 330
可惜,和建商討論過了
換到隔壁那戶要多加100多萬…
也許我們沒有那麼好的運氣吧!
↑回到頂端↑





本站是個命理討論的園地,如果您要問命,請務必詳閱各板板規,遵守發問規則,不要只留個生日或是命盤, 其他什麼都沒提。貼命盤的方法請特別注意算完命盤後的文字說明,不要貼個沒人看懂歪七扭八的命盤, 貼錯命盤及未遵守板規者,文章很有可能被不預警刪除 另外,如果您提了問題,而有人回覆的話,不論對與錯,請務必多上來回應論命者, 我們不歡迎那種提了問題就等人回答,也不回應的人。我們需要的是,「良好的互動」及「長期的追蹤」。
本站大多數的討論區都得要註冊才能發言,您若是要張貼討論,請務必註冊為使用者, 如果您忘了您的密碼,請在登入」的畫面, 輸入您的帳號,再按一下我忘記我的密碼了」, 此時系統會寄一封信到您當時註冊的 Email 信箱裡面, 裡面則附有一個臨時密碼,請您拿到密碼後用此臨時密碼登入。登入之後可以在 編輯個人檔案」裡面修改成您習慣的密碼。
logo
欣洋網路有限公司