✨AI算命大師
Page 2 of 2 < 1 2
議題選項
議題評分
#458678 - 2005-01-21 03:56:59 Re: 如何擋電線竿
熊芷嫻 離線
亢龍有悔
註冊: 2005-02-28
文章數: 892
來自: 魔窟
好吧﹐不過我的畫圖程式沒有中文﹐我只好在這裡註解。不方便之處還請見諒。另外角度的設限也有許偏差。

房子懸空的毛病一個月以內就會補上﹐因為我們的地勢比附近低﹐所以房子必須架高﹐要補當然是用磚頭最好﹐但因經濟問題﹐只能先用帘。

土是黃土﹐以後會慢慢鋪上泥土碎石。我們儘量自己來。

不知道我的圖片會不會太大﹐所以先上圖﹐後續。


附加檔案
828425-hmdiagram.jpg




編輯者: 耿鉦洲 (2005-01-21 07:32:32)
_________________________
祈俯白衣觀世音
願化仙醫妙有娃
天涯角伴不老琴
平安曲癒疾苦家
↑回到頂端↑
#458679 - 2005-01-21 04:26:46 Re: 如何擋電線竿
熊芷嫻 離線
亢龍有悔
註冊: 2005-02-28
文章數: 892
來自: 魔窟
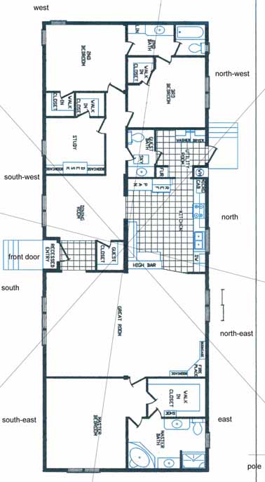
因為問題集中在圖的下面﹐所以我只註解由中間到下面。從左邊開始﹐Reccessed Entry 是大門﹐在南位﹐大門進去是一面牆﹐牆後門的小房間是衣櫃(Guest Closet)﹐中心點在衣櫃後門。衣櫃後面再往右看﹐那個有許多小格子的大空間是廚房(Kitchen)。廚房在北位(north)。

大門進來往右轉﹐即往圖下走﹐那個大空間是客廳(Great Room). 客廳裡的前方您可看到圖的左方有三個相連的大窗戶在南位﹐三個裡面最下面那一個窗戶在午位。而出問題的玻璃門(圖右方)與其中兩個窗戶成一直線。所以我在玻璃門加掛一個八卦鏡。玻璃門的照片上次己列上。客廳右下方是壁爐(Fireplace),在東位(east),兩旁是書架。

由客廳往下走入圖左最下面的房間是主臥房(MasterBedroom),在東南位(southeast),往右走即主浴室(Master Bathroom), 右邊的窗戶就是正對電線竿的窗戶。我在東方位劃了一條線﹐就是電線竿(Pole).

我今天問市政府﹐他們說是高壓桶距離夠遠﹐不會有輻射問題。叫我不必擔心。
_________________________
祈俯白衣觀世音
願化仙醫妙有娃
天涯角伴不老琴
平安曲癒疾苦家
↑回到頂端↑
#458680 - 2005-01-21 05:45:31 Re: 如何擋電線竿
生命之流 離線
終日乾乾
註冊: 2004-12-21
文章數: 199
來自: 命理界
這間房子的煞氣最傷的就是在主臥房方位的女性

你房子外面除了一根電桿還有別的嗎?
左前方有流水?
↑回到頂端↑
#458681 - 2005-01-21 06:13:42 Re: 如何擋電線竿
熊芷嫻 離線
亢龍有悔
註冊: 2005-02-28
文章數: 892
來自: 魔窟
怎麼倒霉的是我不是他??? 不是東方管男性嗎?
沒有其它東西﹐電線竿旁邊是公用道路﹐但是很少人車經過。後面那座山延伸到東及東南位。
_________________________
祈俯白衣觀世音
願化仙醫妙有娃
天涯角伴不老琴
平安曲癒疾苦家
↑回到頂端↑
#458682 - 2005-01-21 06:38:15 Re: 如何擋電線竿
生命之流 離線
終日乾乾
註冊: 2004-12-21
文章數: 199
來自: 命理界
這房子男女都傷 但乙酉年先倒霉的是女生

房子左前方地下有水嗎?
自來水公司給你的水管線在哪裡?
↑回到頂端↑
#458683 - 2005-01-21 07:22:20 Re: 如何擋電線竿
太虛君 離線
久盛不衰
註冊: 2000-01-08
文章數: 9391
小姐你這問題實在很多~~而且有很多地方沒有醫到
反而多了一堆有的沒有的~~只怕日久更糟糕

那魚缸不會有招貴人跟化煞的功能所以可以撤了

另外一個問題在南方大大窗跟圖中東北對面的通風處是相通~~所以可以把東北方的那邊不管是門還是窗給關上~~可以只開南方的就可以了~~這只是治標而已~~治本最好要另外處理~~~~還有別放太多這些化煞的東西了~~~越弄越糟

一樣樣詳細的規劃處理

有機會妳就多唸~南無大慈大悲救苦救難觀世音菩薩~~或是虔心點多頌心經跟普門品~~相信會比讓你成天想東想西好很多
_________________________
若在網站上的命理建議對您有幫助的朋友請不要吝惜您的金錢,不論1元10元百元,請隨喜幫助弱勢團體,(站上信箱不提供私信免費諮詢)
惡言惡口,損人損己,鬼心奸巧,自毀善緣
惜情惜緣,福自心田,善惡果報,絲毫不假

紫微斗數論命3600元,若經濟上有困難之處可以私議,其他風水.陽宅鑑定等服務另議
新竹論命處:新竹市建功一路49巷27號3樓
台北.台中可安排時間外診
如需私下論命請洽私人站上信箱或po168999@yahoo.com.tw

2023年紫微斗數課程--欽天四化與斗數古文班--台北班請點此連結

五行闡微錄─天卷

五行闡微錄勘誤表更新
↑回到頂端↑
#458684 - 2005-01-21 07:41:08 Re: 如何擋電線竿
小道 離線
雙喜臨門
註冊: 2003-08-23
文章數: 2424
回應:

好吧﹐不過我的畫圖程式沒有中文﹐我只好在這裡註解。不方便之處還請見諒。另外角度的設限也有許偏差。

房子懸空的毛病一個月以內就會補上﹐因為我們的地勢比附近低﹐所以房子必須架高﹐要補當然是用磚頭最好﹐但因經濟問題﹐只能先用帘。

土是黃土﹐以後會慢慢鋪上泥土碎石。我們儘量自己來。

不知道我的圖片會不會太大﹐所以先上圖﹐後續。






由照片及圖看 這房子實難藏風聚氣 電線稈如不在八煞位問題不大



高山上 房子屋頂形狀亦有些問題
_________________________
奎統天命聖道顯 耀運乾坤證詮真 之 下 太極陰陽生萬物 陽光普照正乾坤 有風水 紫微斗數 擇日 八字 卜卦 姓名學之問題 或想哈拉聊天 也許你也有陰陽宅和命理之疑問 可請駕臨 http://www.khoeiaumon.com/一定盡力回覆 收費標準:服務範圍內 一切隨緣
↑回到頂端↑
#458685 - 2005-01-21 17:18:06 Re: 如何擋電線竿
熊芷嫻 離線
亢龍有悔
註冊: 2005-02-28
文章數: 892
來自: 魔窟
我們進進出出是由電線竿旁那個道路﹐亦即圖下由左到右(由東南進入﹐圖下左)﹐這裡是沙漠﹐一下雨就泥濘﹐一個星期以前市政府來修路﹐加了小碎石﹐現在比較好了﹐人少之處它們不鋪柏油。

出去過第三條交路﹐是有天然水池﹐房子後面(北位)的道路對面也有一天然水池﹐後面這個比較高比較深。高過我們的地﹐但是水不會外冒。這些水池平常是乾旱的﹐下雨後才變水池。東南位的水池因為淺﹐一﹐二個星期就變乾。後面的可維持到兩﹐三個月。有鄰居養了一千多隻牛﹐平常它們喜歡到這兩個水池逗留﹐我的狗以為後面的水池是我們的(才隔一條路)﹐天天對著他們叫。跑去趕它們。隨時可見野兔跑﹐我的狗又喜歡追兔子。地下水是在4000呎下﹐應該不算您所謂的地下水了。
我們沒有自來水公司﹐大家都是請人挖水上來﹐設個大水缸﹐由電力輸送水入屋﹐可說我們自己就是自來水公司﹐沒有水費的開銷﹐那個水井是在西北位遠﹐即圖上右再往上﹐水管即由那裡來。
_________________________
祈俯白衣觀世音
願化仙醫妙有娃
天涯角伴不老琴
平安曲癒疾苦家
↑回到頂端↑
#458686 - 2005-01-21 17:48:27 Re: 如何擋電線竿
熊芷嫻 離線
亢龍有悔
註冊: 2005-02-28
文章數: 892
來自: 魔窟
房子是坐丑向未﹐八煞位在丑﹐巽﹐已﹐丁﹐酉﹐辛。電線竿在東﹐所以不在八煞位。藏風聚氣實在是大毛病。
_________________________
祈俯白衣觀世音
願化仙醫妙有娃
天涯角伴不老琴
平安曲癒疾苦家
↑回到頂端↑
#458687 - 2005-01-21 18:33:26 Re: 如何擋電線竿
熊芷嫻 離線
亢龍有悔
註冊: 2005-02-28
文章數: 892
來自: 魔窟
好﹐我把廁所那兩個水缸拿走。玻璃門的鏡子我也拿走。黑璧西我留著﹐我是覺得玻璃門最好再加上兩層布帘﹐現在是百葉窗帘﹐不密封。因為玻璃門旁邊是神位﹐開百葉窗帘的拉線在神位旁﹐所以為了不動到神位﹐我很少開那個門。

我先生是漏財命﹐漏得不得了﹐不但漏自己的財﹐還漏我的財﹐2004年起他還有十年大漏財﹐所以我們才會住進漏財屋﹐但是現在已經比以前他中風要死不死好了些。主要是我在他中風那年我拿他八字請教廟裡幫人免費算命的尼姑﹐叫我做制化﹐我開始研究風水﹐做了些制化。才發現他犯了五黃。

他中風時我們還未婚﹐所以不要說我剋夫﹐他是丁生于子月﹐最怕水﹐偏偏他以前的老婆是水庫龍﹐他作生意垮了她另有男友要離婚﹐可是兩年後看到他認識我﹐(我認識他時是他最窮的時候)她又不辦離婚了﹐利用我對他的幫助等著他東山再起。(瞞了我五年﹐我不知她瞞她男友多久。)他的錢都往她那裡送﹐她是能挖多少就挖。他中風時更是一路挖到底﹐他家人更來幫忙挖。所以我是隨時都有小人來偷錢﹐換做任何人﹐不要想東想西﹐作得到嗎? 以前就是太相信人﹐才會被人利用﹐被人偷。

我現在等於是個在俗的尼姑﹐我天天早上都敲木魚唸經的﹐老天照顧我﹐才會有各位大大來幫忙。
另外我想起來沒有提到屋內擺設。我大門在南﹐據查49同﹐財位在東南﹐即主臥房。我擺了一個搖擺的小鐘﹐及一個小小碗的水晶水池(有燈)﹐水生巽木也(不過2005三碧轉東南﹐恐怕水池得移走)。據說臥房見水為破財﹐主要是因為聲煞﹐但是那個小碗的噴水池無聲﹐有我和先生也聽不見﹐我天生重聽。而且我晚上都得起來一次上廁所﹐那個小燈還有一點用處。

坐丑向未﹐整棟屋的財位在西﹐(即圖中左上)﹐因為沒人住﹐我放了很多東西。一個小魚缸﹐有一條小黑磨利﹐幾個小小金魚。一個大菠蘿白水晶蔟﹐及黃財神相。說我想錢想瘋了﹐我也無所謂。我得為我兒子的大學費生活費操心。說句良心老實話﹐我對老的已經是仁至義盡﹐有鄰居朋友作見證﹐他及他家人只會利用﹐不替我及我兒子想﹐所以老的對我已經不重要。太傷我的心。
_________________________
祈俯白衣觀世音
願化仙醫妙有娃
天涯角伴不老琴
平安曲癒疾苦家
↑回到頂端↑
#458688 - 2005-01-24 05:50:54 Re: 如何擋電線竿
生命之流 離線
終日乾乾
註冊: 2004-12-21
文章數: 199
來自: 命理界
出去過第三條交路﹐是有天然水池南位的水池因為淺﹐一﹐二個星期就變乾。

南位的水池這個位置是出去過第三條交路?
如果是 這裡的煞氣也是麻煩
↑回到頂端↑
#458689 - 2005-01-24 16:18:09 Re: 如何擋電線竿
熊芷嫻 離線
亢龍有悔
註冊: 2005-02-28
文章數: 892
來自: 魔窟
對不起﹐漏打一個字﹐前面水池是在東南位﹐不是南位﹐水池是三條路口過去那麼遠﹐從我家是看不見水的。應該是沒有影響的吧?
_________________________
祈俯白衣觀世音
願化仙醫妙有娃
天涯角伴不老琴
平安曲癒疾苦家
↑回到頂端↑
#458690 - 2005-01-25 00:54:53 Re: 如何擋電線竿
生命之流 離線
終日乾乾
註冊: 2004-12-21
文章數: 199
來自: 命理界
東南位的馬路 造成的影響是...是非較多
房子內部能隨自己意志而改 但房子外部無法改
風水就是有這種無奈的地方 跟個人行運一致

不知道你現在是如何生財的?
你為什麼會想住在沒有人煙的地方?
↑回到頂端↑
#458691 - 2005-01-25 01:40:18 Re: 如何擋電線竿
熊芷嫻 離線
亢龍有悔
註冊: 2005-02-28
文章數: 892
來自: 魔窟
我只要知道毛病在哪就好辦。以後在東南位種樹應該可解。錢被他以前老婆扒光了﹐他又沒工作﹐只好搬到便宜地方。一半靠他的殘障福利﹐一半靠我的儲蓄。所以我急著不知什麼時候可找到工作﹐您可算嗎? 他只是在等我找工作﹐他想在家享福。
_________________________
祈俯白衣觀世音
願化仙醫妙有娃
天涯角伴不老琴
平安曲癒疾苦家
↑回到頂端↑

Page 2 of 2 < 1 2




本站是個命理討論的園地,如果您要問命,請務必詳閱各板板規,遵守發問規則,不要只留個生日或是命盤, 其他什麼都沒提。貼命盤的方法請特別注意算完命盤後的文字說明,不要貼個沒人看懂歪七扭八的命盤, 貼錯命盤及未遵守板規者,文章很有可能被不預警刪除 另外,如果您提了問題,而有人回覆的話,不論對與錯,請務必多上來回應論命者, 我們不歡迎那種提了問題就等人回答,也不回應的人。我們需要的是,「良好的互動」及「長期的追蹤」。
本站大多數的討論區都得要註冊才能發言,您若是要張貼討論,請務必註冊為使用者, 如果您忘了您的密碼,請在登入」的畫面, 輸入您的帳號,再按一下我忘記我的密碼了」, 此時系統會寄一封信到您當時註冊的 Email 信箱裡面, 裡面則附有一個臨時密碼,請您拿到密碼後用此臨時密碼登入。登入之後可以在 編輯個人檔案」裡面修改成您習慣的密碼。
logo
欣洋網路有限公司