好吧.就回到原點
針對妳問題
我也將前面我說過的重點整理一下
問題: 家中如何擺設能使住在這裡的人都外出順利
1.家中如何擺設可以防小人
半仙解 >>>目前格局應無此問題,再來就是宅後有煞面啦
(妳又說..無尖銳或明顯物體在住家往外看的視線範圍.)後面呢?
比如..破敗的屋宅廢棄物.尖角煞,探頭形物.
問題: 2.男方部分:工作順利.(目前工作順利,人緣不錯.<這是公司裁員後改組的結果>
但是沒到過年已經有人來要人(朋友公司想找他過去).要換嗎?
半仙解 >>>這還要求外出順利嗎?
證之我前說
[此宅男女主人.應該是活動力強.做事積極,]
就是外緣好,活動力強.這也是我前面說
,[ 慢慢的.我說的些事.應該會呈現才是.待觀察.]
因此,如果條件好的話,可以考慮(目前他書桌坐位置ok)
妳條件好是好,但是會差些,因為我認為化妝台與電腦桌位置影響
問題: 3.女方部份:還是每天賴床............容易有小毛病.
半仙解 >>>這一點我前已看出來,是床位與妳命卦原因 (位置無太大問題. )男方沒有吧.
小毛病.嘛.我看是…
妳如果睡靠牆,偏下肢雨偏腎水泌尿或循環毛病
如果睡靠門.會加上心與胸部毛病
因為房間限制,改變不易.除非重新設計隔間佈置.
另外,洗手間在廚房裡面,是個健康問題打折.記得門常關.
(此為小毛病並且引起貪睡的一部分原因)
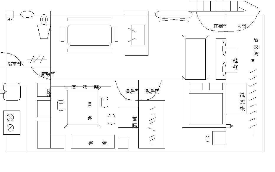
以下就受限制,在可能範圍建議參考(請比較原有格局)
註:化妝台此向,有利女主人,但是需要加廉子.
沒有使時用要遮住.不使照射到床.---半仙附註
原有格局
黃仙空中與您相會 謹致
Have a nice day 陽宅斗數 測字 解卦 為文論說僅供參考.請自行定奪