✨AI算命大師
議題選項
議題評分
#404589 - 2004-08-15 17:28:23 請諸位大大幫忙指教新居配置
att 離線
潛龍勿用
註冊: 2004-06-14
文章數: 18
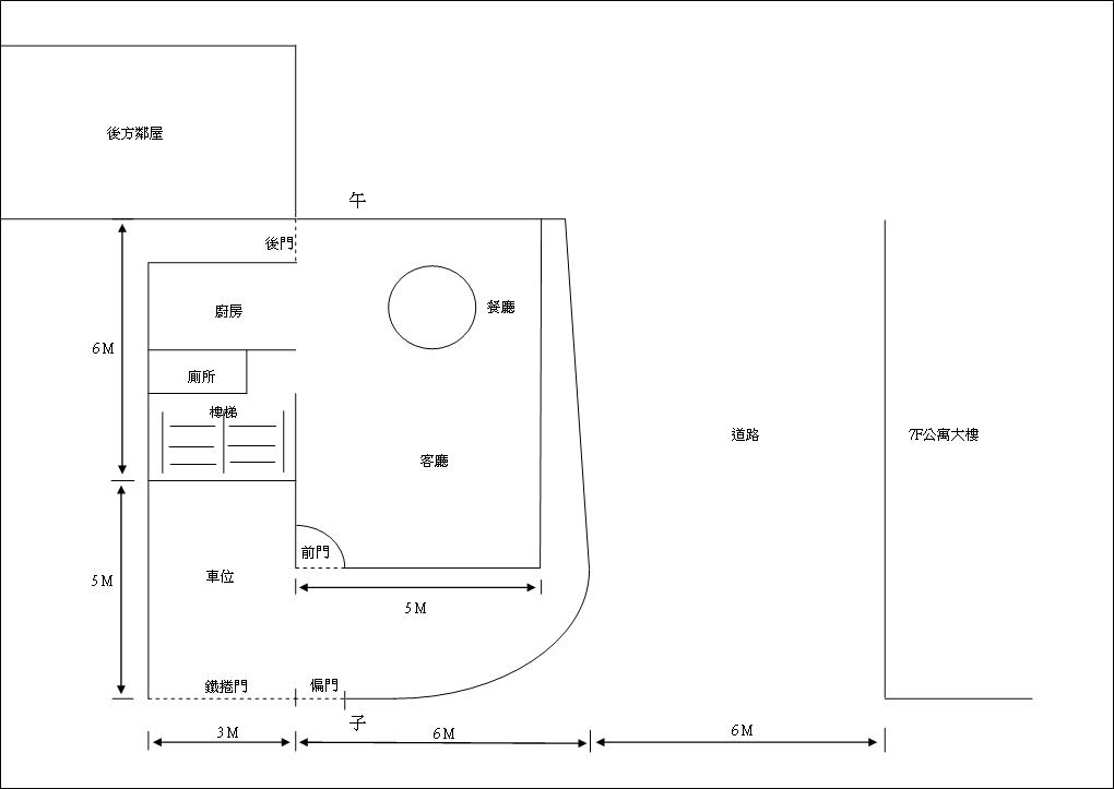
最近家父定了間預售屋
近期內將與建商確認施工變更方面
但弟總覺得建商原配置怪怪的
請諸位大大幫忙指教

新居為雙拼式住宅(4F),如附圖為1F配置圖
為午山子向
東方為鄰屋
北方為一大塊空地,約500公尺外才有建築物
南方為同社區鄰屋,但南方約600公尺左右也有10F大樓
弟的問題如下:
1.樓梯在房屋前段且走向為平行房屋座向,可否?
一般樓梯多建於後段,且走向多為垂直房屋座向
2.前門開於幾乎正中,可否?
一般民俗有『門開龍邊』的說法,因此家人一直想把前門改至龍邊
3.至於餐廳,客廳及廚房間是否需隔間分開?

請諸大大幫忙看看,或者如何配置為佳
此外,此屋之2F及3F配置也很奇怪,弟將於後補上配置圖
感恩!


附加檔案
658978-origin.JPG


↑回到頂端↑





本站是個命理討論的園地,如果您要問命,請務必詳閱各板板規,遵守發問規則,不要只留個生日或是命盤, 其他什麼都沒提。貼命盤的方法請特別注意算完命盤後的文字說明,不要貼個沒人看懂歪七扭八的命盤, 貼錯命盤及未遵守板規者,文章很有可能被不預警刪除 另外,如果您提了問題,而有人回覆的話,不論對與錯,請務必多上來回應論命者, 我們不歡迎那種提了問題就等人回答,也不回應的人。我們需要的是,「良好的互動」及「長期的追蹤」。
本站大多數的討論區都得要註冊才能發言,您若是要張貼討論,請務必註冊為使用者, 如果您忘了您的密碼,請在登入」的畫面, 輸入您的帳號,再按一下我忘記我的密碼了」, 此時系統會寄一封信到您當時註冊的 Email 信箱裡面, 裡面則附有一個臨時密碼,請您拿到密碼後用此臨時密碼登入。登入之後可以在 編輯個人檔案」裡面修改成您習慣的密碼。
logo
欣洋網路有限公司