✨AI算命大師
議題選項
議題評分
#1912080 - 2017-01-26 09:25:58 請教屋內擺設及動線建議
BetterMe 離線
見龍在田
註冊: 2016-01-05
文章數: 27
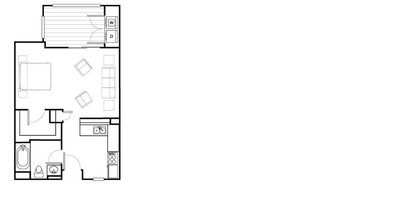
目前考慮搬入一間公寓,約13坪,本人屬鼠,此房為座東向西.
由於沒有隔間,在此想請老師們建議室內動線的安排?或是家具擺設上有什麼需要注意的?
不好意思,因為不知道怎麼將平面圖貼在文章內,所以要麻煩老師們開啟附加圖檔 ^^" 謝謝~
祝 雞年快樂!


附加檔案
Enclave studio.jpg

平面圖


↑回到頂端↑
#1912180 - 2017-01-26 20:13:40 Re: 請教屋內擺設及動線建議
小凱哥 離線
雙喜臨門
註冊: 2001-11-13
文章數: 2707
來自: 台北市

剛打了一大堆解說想回文,就遇到D網的網路問題,10分鐘左右D網進不來,連其他網路都正常
通常我回文時會遇到這種情況就代表這是改變命運的小蝴蝶關鍵處

呵呵,習慣了,一切都是天意,洩天機的老毛病又犯了

簡單的說,如能再多看幾間不同的格局或許會更好也不一定

祝您新年快樂
_________________________
玄空風水數位門

玄空風水數位門是新時代應運之新風水學派,秉承三元派風水之精義,
另創特色之數位學理架構詮釋天地人三才風水系統架構,
數即一切之理,位即一切之時間與空間.數位亦是陰陽生化萬法由此生生造化.
陰陽協調三才互動,實踐人間淨土工程.

風水職業班新台幣50萬元整(港幣或人民幣10萬元整)
三元風水秘訣面授點訣(限有基礎者)
教學與進一步詳論者,潤金收費,請聯絡Mail下址
victor.chung@msa.hinet.net

拙著:六爻易斷精要講義下載

中醫藥保健資訊網

易經六十四卦占卜大衍版_打包新安裝(繁體中文版)
↑回到頂端↑
#1912285 - 2017-01-27 23:41:10 Re: 請教屋內擺設及動線建議
BetterMe 離線
見龍在田
註冊: 2016-01-05
文章數: 27
謝謝小凱哥回覆~新年快樂!
因為預算有限,所以不太可能租到一房的公寓
目前看到的,都是廳房一室,沒有隔間>"<
請問有沒有辦法用室內擺設的方式,化解先天的不足!?^^"
↑回到頂端↑
#1912423 - 2017-01-29 03:39:31 Re: 請教屋內擺設及動線建議
小凱哥 離線
雙喜臨門
註冊: 2001-11-13
文章數: 2707
來自: 台北市
三元派陽宅法當以門為向,以陽台等開陽大氣口為納氣輔運

而中國傳統風水的哲學恐怕與西方的居住室內設計理念有些看法不同
室內設計以實用為主(講求的是操作動線與功能性)
陽宅風水講的是宅運與宅氣等配卦與形家煞氣等

以傳統風水形家格局而言喜歡的是開門為廳堂這樣事業財運才光明(講究明堂)
而此公寓格局是一進門就左廚右廁(成扼喉形),此種格局多半是單身或DINK族的公寓.
_________________________
玄空風水數位門

玄空風水數位門是新時代應運之新風水學派,秉承三元派風水之精義,
另創特色之數位學理架構詮釋天地人三才風水系統架構,
數即一切之理,位即一切之時間與空間.數位亦是陰陽生化萬法由此生生造化.
陰陽協調三才互動,實踐人間淨土工程.

風水職業班新台幣50萬元整(港幣或人民幣10萬元整)
三元風水秘訣面授點訣(限有基礎者)
教學與進一步詳論者,潤金收費,請聯絡Mail下址
victor.chung@msa.hinet.net

拙著:六爻易斷精要講義下載

中醫藥保健資訊網

易經六十四卦占卜大衍版_打包新安裝(繁體中文版)
↑回到頂端↑
#1912706 - 2017-01-30 20:15:08 Re: 請教屋內擺設及動線建議
BetterMe 離線
見龍在田
註冊: 2016-01-05
文章數: 27
謝謝小凱哥說明
↑回到頂端↑





本站是個命理討論的園地,如果您要問命,請務必詳閱各板板規,遵守發問規則,不要只留個生日或是命盤, 其他什麼都沒提。貼命盤的方法請特別注意算完命盤後的文字說明,不要貼個沒人看懂歪七扭八的命盤, 貼錯命盤及未遵守板規者,文章很有可能被不預警刪除 另外,如果您提了問題,而有人回覆的話,不論對與錯,請務必多上來回應論命者, 我們不歡迎那種提了問題就等人回答,也不回應的人。我們需要的是,「良好的互動」及「長期的追蹤」。
本站大多數的討論區都得要註冊才能發言,您若是要張貼討論,請務必註冊為使用者, 如果您忘了您的密碼,請在登入」的畫面, 輸入您的帳號,再按一下我忘記我的密碼了」, 此時系統會寄一封信到您當時註冊的 Email 信箱裡面, 裡面則附有一個臨時密碼,請您拿到密碼後用此臨時密碼登入。登入之後可以在 編輯個人檔案」裡面修改成您習慣的密碼。
logo
欣洋網路有限公司