✨AI算命大師
議題選項
議題評分
#1774856 - 2015-04-17 19:24:12 梁派斗數 陽宅學。
flystarchou 離線
亢龍有悔
註冊: 2010-08-31
文章數: 706
一、引言:現在 都是 梁派飛星斗數 說的 為主
那 原則上 還是從 「名詞 解釋」 學習起
太高深 就不說了
梁派斗數陽宅學,也很簡單的
就是坐忌,向祿權科

二、接氣、引氣:
1、大門,窗戶:
比如說 房子 大門 或是 房子裡 的開窗戶的地方 都需要 向祿權科
因為 古時候 都是 平面 一樓 的建築
所以 大門 就是 要接「氣」
但是 現在的 都是 大樓, 還要 上樓 ,坐電梯
那 「大門的氣」 引入 房子裡的功能 就變少了
就變成 你的家 門口 直接面對的方向
或是 大片 落地窗戶的方向,所接引的氣
房屋与外界想通的地方 门或者窗户都能引气
現在的風水學,就不能以「樓下社區的大門為主了」

2、內部空間:
只要空間使用率越高,气就动起来了,
如果是忌,那就是不能動了,如果是禄权科就要常動了。

三、結論:所以 梁派飛星的陽宅學 概念上 很簡單的
忌的要静,不能让忌动起来
忌最好不用,这样就避凶的功能了。
↑回到頂端↑
#1774857 - 2015-04-17 19:25:06 Re: 梁派斗數 陽宅學。
flystarchou 離線
亢龍有悔
註冊: 2010-08-31
文章數: 706
123


附加檔案
梁派風水基礎解釋,房子的向.jpg

梁派風水基礎解釋,床向.jpg


↑回到頂端↑
#1774858 - 2015-04-17 19:25:48 Re: 梁派斗數 陽宅學。
flystarchou 離線
亢龍有悔
註冊: 2010-08-31
文章數: 706
123


附加檔案
斗數陽宅 怎麼開大門! 向祿坐忌.jpg


↑回到頂端↑
#1774859 - 2015-04-17 19:54:11 Re: 梁派斗數 陽宅學。
flystarchou 離線
亢龍有悔
註冊: 2010-08-31
文章數: 706
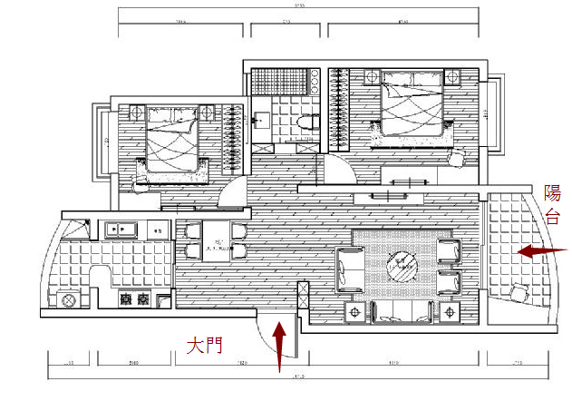
我個人認為 現在 大樓的房子 更是以 「陽台」 為重要的 納氣 的方向
命盤 重疊 房子 平面圖
就很清楚 該向 那一個方向了
該 動 就要動 該 靜 的地方 都看的清楚的


附加檔案
QQ图片20150417123510.png


↑回到頂端↑





本站是個命理討論的園地,如果您要問命,請務必詳閱各板板規,遵守發問規則,不要只留個生日或是命盤, 其他什麼都沒提。貼命盤的方法請特別注意算完命盤後的文字說明,不要貼個沒人看懂歪七扭八的命盤, 貼錯命盤及未遵守板規者,文章很有可能被不預警刪除 另外,如果您提了問題,而有人回覆的話,不論對與錯,請務必多上來回應論命者, 我們不歡迎那種提了問題就等人回答,也不回應的人。我們需要的是,「良好的互動」及「長期的追蹤」。
本站大多數的討論區都得要註冊才能發言,您若是要張貼討論,請務必註冊為使用者, 如果您忘了您的密碼,請在登入」的畫面, 輸入您的帳號,再按一下我忘記我的密碼了」, 此時系統會寄一封信到您當時註冊的 Email 信箱裡面, 裡面則附有一個臨時密碼,請您拿到密碼後用此臨時密碼登入。登入之後可以在 編輯個人檔案」裡面修改成您習慣的密碼。
logo
欣洋網路有限公司