✨AI算命大師
議題選項
議題評分
#1424274 - 2011-03-27 12:29:15 這樣的房間擺設是不是大有問題阿???
天下無雙 離線
見龍在田
註冊: 2010-09-25
文章數: 84
請問這樣的擺設會出現什麼樣的問題呢?房間放了一堆櫃子是不是不好阿???
還有橫梁壓著床我頭又睡在橫梁下...
電腦桌的螢幕照著我的身體,雖然有用布蓋起來,這房間的財位跟桃花位是在哪?
不過還是請人幫忙解惑吧!!感謝感謝!!


附加檔案
房間擺設.gif


↑回到頂端↑
#1424294 - 2011-03-27 13:48:22 Re: 這樣的房間擺設是不是大有問題阿???
黃半仙 離線

一路發發發
註冊: 2002-01-16
文章數: 18670
來自: 台北市/東湖(手機: 09351...
扇子


菜脯 呀!
整戶總個平面呢?
書桌電腦桌 為何分開?
方位?
給個衛星圖吧!


~參考~

angel
[紫林居士] 善知識 陽宅風水+室內設計 巒頭圖詩
姓名 測字 斗數
_________________________
*觀自在 緣無攀 見如來*
有緣相遇 詩詞隱寓 請細尋思 有份當瞭

教學 與 進一步詳論者,潤金收費,請聯絡Mail 下址
Hspace03949@gmail.com

請詳我的論壇:

http://eternity.why3s.net/index.php

紫林居士 斗數命例輯..索引 .陸續增補
紫林居士 陽宅準確案例輯-2(A...;extra=page%3D1

紫林居士的一些風水圖文寓意詩.. -索引
紫林居士-12生肖分類 姓名案
↑回到頂端↑
#1424379 - 2011-03-27 19:45:56 Re: 這樣的房間擺設是不是大有問題阿???
天下無雙 離線
見龍在田
註冊: 2010-09-25
文章數: 84
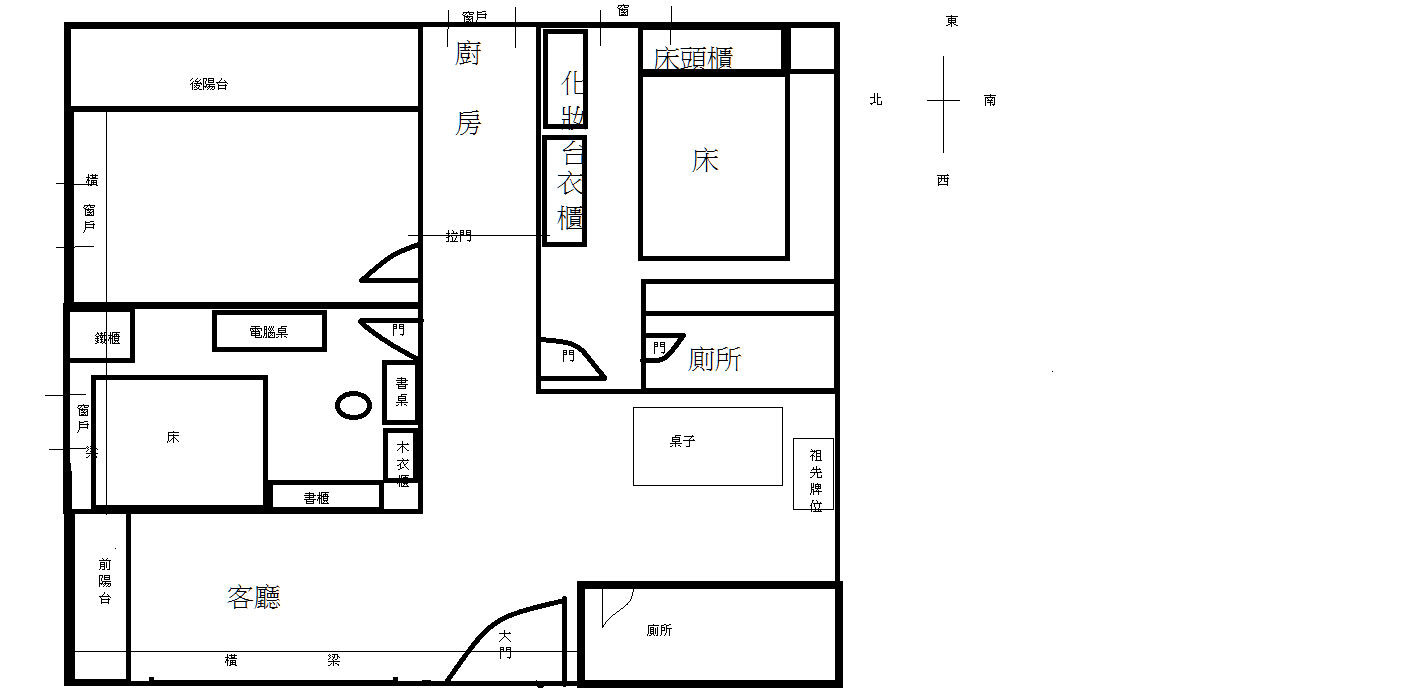
這是整間房子的配置圖,因為是公寓...所以只有這麼小了
圖畫得很爛~~不過大概也差不多了...多謝指教唷!!


附加檔案
房間配置.png




編輯者: 天下無雙 (2011-03-27 19:46:44)
↑回到頂端↑
#1424578 - 2011-03-28 09:58:15 簡單建議 Re: 這樣的房間擺設是不是大有問題阿???
黃半仙 離線

一路發發發
註冊: 2002-01-16
文章數: 18670
來自: 台北市/東湖(手機: 09351...
扇子

哎呀
你這比例 南轅北輒
實在…
投降
不管它了
只針對方位看

有緣網遇
簡單建議



~參考~

angel
[紫林居士] 善知識 陽宅風水+室內設計 巒頭圖詩
姓名 測字 斗數


附加檔案
建議圖.jpg




編輯者: 黃半仙 (2011-03-28 09:59:05)
_________________________
*觀自在 緣無攀 見如來*
有緣相遇 詩詞隱寓 請細尋思 有份當瞭

教學 與 進一步詳論者,潤金收費,請聯絡Mail 下址
Hspace03949@gmail.com

請詳我的論壇:

http://eternity.why3s.net/index.php

紫林居士 斗數命例輯..索引 .陸續增補
紫林居士 陽宅準確案例輯-2(A...;extra=page%3D1

紫林居士的一些風水圖文寓意詩.. -索引
紫林居士-12生肖分類 姓名案
↑回到頂端↑
#1424587 - 2011-03-28 10:39:30 Re: 簡單建議 Re: 這樣的房間擺設是不是大有問題阿???
天下無雙 離線
見龍在田
註冊: 2010-09-25
文章數: 84
左上方那個是什麼東西呢?
謝謝你的回答唷!!黃半仙大師
↑回到頂端↑
#1424589 - 2011-03-28 10:46:24 Re: 簡單建議 Re: 這樣的房間擺設是不是大有問題阿???
黃半仙 離線

一路發發發
註冊: 2002-01-16
文章數: 18670
來自: 台北市/東湖(手機: 09351...
張貼者: 天下無雙
左上方那個是什麼東西呢?
謝謝你的回答唷!!黃半仙大師


扇子

不就是..

衣櫃 嘛!


~參考~

angel
[紫林居士] 善知識 陽宅風水+室內設計 巒頭圖詩
姓名 測字 斗數
_________________________
*觀自在 緣無攀 見如來*
有緣相遇 詩詞隱寓 請細尋思 有份當瞭

教學 與 進一步詳論者,潤金收費,請聯絡Mail 下址
Hspace03949@gmail.com

請詳我的論壇:

http://eternity.why3s.net/index.php

紫林居士 斗數命例輯..索引 .陸續增補
紫林居士 陽宅準確案例輯-2(A...;extra=page%3D1

紫林居士的一些風水圖文寓意詩.. -索引
紫林居士-12生肖分類 姓名案
↑回到頂端↑
#1424593 - 2011-03-28 10:58:10 Re: 簡單建議 Re: 這樣的房間擺設是不是大有問題阿???
天下無雙 離線
見龍在田
註冊: 2010-09-25
文章數: 84
呵呵!!多謝多謝^^不過我的電腦該放到哪去 圖的位置 我只看到床 、書櫃、 鐵櫃、書桌、衣櫃、但是電腦桌該放哪?

而且書桌上有橫梁這是好的嗎?^^懇請賜教,我不是來亂的是真心誠意要問的>"<


編輯者: 天下無雙 (2011-03-28 11:07:16)
↑回到頂端↑
#1424596 - 2011-03-28 11:27:03 Re: 簡單建議 Re: 這樣的房間擺設是不是大有問題阿???
黃半仙 離線

一路發發發
註冊: 2002-01-16
文章數: 18670
來自: 台北市/東湖(手機: 09351...
張貼者: 天下無雙
呵呵!!多謝多謝^^不過我的電腦該放到哪去 圖的位置 我只看到床 、書櫃、 鐵櫃、書桌、衣櫃、但是電腦桌該放哪?

而且書桌上有橫梁這是好的嗎?^^懇請賜教,我不是來亂的是真心誠意要問的>"<

扇子

新人洞房 彼起落
哪包生子 媒婆妁

書桌電腦 自調適
不然長短 補截用


~參考~

angel
[紫林居士] 善知識 斗數
陽宅風水+室內設計 巒頭圖詩 姓名 測字
_________________________
*觀自在 緣無攀 見如來*
有緣相遇 詩詞隱寓 請細尋思 有份當瞭

教學 與 進一步詳論者,潤金收費,請聯絡Mail 下址
Hspace03949@gmail.com

請詳我的論壇:

http://eternity.why3s.net/index.php

紫林居士 斗數命例輯..索引 .陸續增補
紫林居士 陽宅準確案例輯-2(A...;extra=page%3D1

紫林居士的一些風水圖文寓意詩.. -索引
紫林居士-12生肖分類 姓名案
↑回到頂端↑
#1424609 - 2011-03-28 12:03:38 Re: 簡單建議 Re: 這樣的房間擺設是不是大有問題阿???
天下無雙 離線
見龍在田
註冊: 2010-09-25
文章數: 84
了解!!多謝黃半仙大師了!
↑回到頂端↑
#1427845 - 2011-04-07 03:07:37 Re: 這樣的房間擺設是不是大有問題阿???
胡百弘 離線
或躍在淵
註冊: 2011-04-06
文章數: 246
來自: 台灣新竹
您好,我是胡百弘,頭被梁壓到,睡久了會中風,睡在這床的人,脾氣會暴躁,
右手臂容易感到酸痛,如果是女人,生小孩多半是會剖腹生。
常常有人問我,買房子要不要配合八字,我的八字要住什麼方位的房子等等問題,

今天就簡單跟大家談談一些風水基本概念。

我們都知道,一個人的健康好不好跟 "氣"有關,氣色如果紅潤就代表健康不錯,人只

要有氣就舒服,反之氣不足就要生病,如果斷氣那就表示要去西方報到了。

房子也是一樣,房子如果有氣,人住進去人就會有氣,萬物都需要氣,有氣則會生生不息。

房子如果氣弱,人住了就會跟著氣弱,久而久之健康就會出現問題,沒氣萬物則會凋零。

所以說要住什麼樣的房子,跟八字是一點都不相干的,這杯水能喝,大家都能喝,如果不能

喝,誰也不能喝不是嗎? 反觀房子也是一樣,能住大家都能住,不能住大家也都不能住,這

才是真理。

氣是無形的,一般人看不見,但對懂 "真正" 風水的人,就很簡單了,簡單到就如同我們看

一個人的美醜,胖瘦一樣是完全不用思考的。

氣跟陰陽有關,異性相吸,同性相斥,孤陰不生,獨陽不長,這是永遠不變的道理。

萬物都是陰陽之氣所化,在中醫來講,陰陽如果失調,人的健康就會出現問題,我幫人看風水,

用的也只是陰陽而已,和中醫不同之處是,中醫是替人把脈,而我是幫房子把脈。陰陽道理雖簡

單,但它卻是千變萬化的。我們平常吃飯用的筷子也有陰陽喔,各位知道哪一根是陰,哪一根

是陽嗎?

陽宅和陰宅道理都是一樣,古人老早就告訴我們 "識得陰陽兩路行,富貴達京城"不是嗎?

換言之,只要能掌握陰陽之道,就能掌握一生的幸福,這才是王道。
_________________________
胡百弘命理風水顧問舘負責人,國際建築風水研究學會副理事長‧新竹縣市工程技術顧問同業公會顧問‧陰陽法第二代正宗傳人‧長眼法第四代正宗傳人。
↑回到頂端↑
#1435698 - 2011-04-28 23:17:40 Re: 這樣的房間擺設是不是大有問題阿???
天下無雙 離線
見龍在田
註冊: 2010-09-25
文章數: 84
多謝胡百弘大師為我指點迷津,久而久之翻舊文,才知大師有回應劣者,在此深感多謝。
↑回到頂端↑
#1436032 - 2011-04-30 00:46:02 Re: 這樣的房間擺設是不是大有問題阿???
唐明 離線
或躍在淵
註冊: 2000-10-13
文章數: 246
來自: 臺灣(台中市)
_________________________
善最樂
山有高低水淺深.人有善惡萬種心.山高水深人能曉.惟獨人心有假真
一代贓官七世娼.忠奸難測水難量.善似青松惡似花.青松冷淡無豪華
有朝一日嚴霜降.只見青松不見花.善人如同田中土.惡人好比犛頭強
田中翻土年年在.犛頭磨滅土中藏.三條泥鰍比條鱔.上下比來鱔魚長
人惡人怕天不怕.人善人欺天不欺.行善之人天賜福.作惡之人招災殃
凡人一心能為善.將來福壽大吉祥.
↑回到頂端↑
#1436132 - 2011-04-30 09:07:19 Re: 這樣的房間擺設是不是大有問題阿???
陳俊誠 離線
一元復始
註冊: 2010-08-26
文章數: 1138
來自: 台灣台南市永康區
張貼者: 唐明




床這樣擺不行,事業、工作沒貴人,頭、腳...都會有問題。






_________________________
陳俊誠八字風水學院‧吉祥光文物
------------------------------------------------------
部落格 - http://ask.destiny.to/consultant/ChengBaZi/blogs
FB粉絲專頁 - https://www.facebook.com/taiwan8word/
FB - https://www.facebook.com/china8word
服務專線:095 507 507 1
別人10年學不會的命理,你只要16堂課(每堂課90分鐘)就能學會
遠地不克前來者,歡迎使用「FB聊天室 或 LINE 語音教學」LINE:omahhong
●陳俊誠老師:自15歲家傳研命與風水已近50年,執業30餘年
●教學:八字弟子班/擇日弟子班/陽宅風水弟子班
●服務:八字論命/造命(剖腹產擇日)/各類擇日/陽宅鑑定佈局改運/改名
●八字弟子班:學費200,000 (新台幣TWD)
●擇日弟子班:學費88,000 (新台幣TWD)
●陽宅風水弟子班:學費68,000 (新台幣TWD)
↑回到頂端↑
#1436148 - 2011-04-30 10:10:13 Re: 這樣的房間擺設是不是大有問題阿???
唐明 離線
或躍在淵
註冊: 2000-10-13
文章數: 246
來自: 臺灣(台中市)
依現有傢俱做調適,能閃則閃.致於更完善之法乃經裝璜修飾,如橫梁之面可作隱藏式之櫃.把衣櫃捨去,納入隱藏櫃中結省空間,使整體面更加舒暢!
_________________________
善最樂
山有高低水淺深.人有善惡萬種心.山高水深人能曉.惟獨人心有假真
一代贓官七世娼.忠奸難測水難量.善似青松惡似花.青松冷淡無豪華
有朝一日嚴霜降.只見青松不見花.善人如同田中土.惡人好比犛頭強
田中翻土年年在.犛頭磨滅土中藏.三條泥鰍比條鱔.上下比來鱔魚長
人惡人怕天不怕.人善人欺天不欺.行善之人天賜福.作惡之人招災殃
凡人一心能為善.將來福壽大吉祥.
↑回到頂端↑
#1436180 - 2011-04-30 12:39:15 Re: 這樣的房間擺設是不是大有問題阿???
陳俊誠 離線
一元復始
註冊: 2010-08-26
文章數: 1138
來自: 台灣台南市永康區

他這一局無論怎麼調都無法調到完美......但:

1.為了健康,該捨棄的傢俱還是要捨棄或靠您說的裝潢來改善。

2.現在的床只要避開頭上橫樑,可算是這一局最好的床位了。

◎新圖的床位反而完全不對!

3.窗戶要看納氣,再來決定開關。



_________________________
陳俊誠八字風水學院‧吉祥光文物
------------------------------------------------------
部落格 - http://ask.destiny.to/consultant/ChengBaZi/blogs
FB粉絲專頁 - https://www.facebook.com/taiwan8word/
FB - https://www.facebook.com/china8word
服務專線:095 507 507 1
別人10年學不會的命理,你只要16堂課(每堂課90分鐘)就能學會
遠地不克前來者,歡迎使用「FB聊天室 或 LINE 語音教學」LINE:omahhong
●陳俊誠老師:自15歲家傳研命與風水已近50年,執業30餘年
●教學:八字弟子班/擇日弟子班/陽宅風水弟子班
●服務:八字論命/造命(剖腹產擇日)/各類擇日/陽宅鑑定佈局改運/改名
●八字弟子班:學費200,000 (新台幣TWD)
●擇日弟子班:學費88,000 (新台幣TWD)
●陽宅風水弟子班:學費68,000 (新台幣TWD)
↑回到頂端↑
#1436187 - 2011-04-30 13:11:59 Re: 這樣的房間擺設是不是大有問題阿???
唐明 離線
或躍在淵
註冊: 2000-10-13
文章數: 246
來自: 臺灣(台中市)
讚 不換床頭方向也可!把橫梁之處修飾掉!
_________________________
善最樂
山有高低水淺深.人有善惡萬種心.山高水深人能曉.惟獨人心有假真
一代贓官七世娼.忠奸難測水難量.善似青松惡似花.青松冷淡無豪華
有朝一日嚴霜降.只見青松不見花.善人如同田中土.惡人好比犛頭強
田中翻土年年在.犛頭磨滅土中藏.三條泥鰍比條鱔.上下比來鱔魚長
人惡人怕天不怕.人善人欺天不欺.行善之人天賜福.作惡之人招災殃
凡人一心能為善.將來福壽大吉祥.
↑回到頂端↑
#1436279 - 2011-05-01 02:15:55 大家來摸象 Re: 這樣的房間擺設是不是大有問題阿???
黃半仙 離線

一路發發發
註冊: 2002-01-16
文章數: 18670
來自: 台北市/東湖(手機: 09351...
張貼者: 陳俊誠

他這一局無論怎麼調都無法調到完美......
但:
現在的床只要避開頭上橫樑,可算是這一局最好的床位了

扇子

你說他說 摸象說

此君宅配 房布置
健康堪慮 肺呼吸
行事總在 阻絕逆
電腦沉迷 廢寢食
遲睡晚起 精神差
情緣波折 文書失


居士所見 看分說

~參考~

angel
[紫林居士] 善知識 陽宅風水+室內設計 巒頭圖詩
姓名 測字 斗數
_________________________
*觀自在 緣無攀 見如來*
有緣相遇 詩詞隱寓 請細尋思 有份當瞭

教學 與 進一步詳論者,潤金收費,請聯絡Mail 下址
Hspace03949@gmail.com

請詳我的論壇:

http://eternity.why3s.net/index.php

紫林居士 斗數命例輯..索引 .陸續增補
紫林居士 陽宅準確案例輯-2(A...;extra=page%3D1

紫林居士的一些風水圖文寓意詩.. -索引
紫林居士-12生肖分類 姓名案
↑回到頂端↑
#1443773 - 2011-05-28 10:23:50 大家來摸象 Re: 這樣的房間擺設是不是大有問題阿???
天下成雙 離線
見龍在田
註冊: 2011-04-29
文章數: 47
我按照黃半仙大師的圖佈置了...這樣是對的嗎?
既然不能完美...但是至少有最好的格局吧!!
_________________________
窮通禍福貧達顯,利祿功權由天定,命裡有時終須有,命裡無時莫強求。

鯉魚志氣本英雄,屈在池中運未通,一旦飛來頭角現,風雲聚會化成龍。

人以銅為鏡,可以正衣冠,以古為鏡,可以見興替,以人為鏡,可以知得失。
↑回到頂端↑





本站是個命理討論的園地,如果您要問命,請務必詳閱各板板規,遵守發問規則,不要只留個生日或是命盤, 其他什麼都沒提。貼命盤的方法請特別注意算完命盤後的文字說明,不要貼個沒人看懂歪七扭八的命盤, 貼錯命盤及未遵守板規者,文章很有可能被不預警刪除 另外,如果您提了問題,而有人回覆的話,不論對與錯,請務必多上來回應論命者, 我們不歡迎那種提了問題就等人回答,也不回應的人。我們需要的是,「良好的互動」及「長期的追蹤」。
本站大多數的討論區都得要註冊才能發言,您若是要張貼討論,請務必註冊為使用者, 如果您忘了您的密碼,請在登入」的畫面, 輸入您的帳號,再按一下我忘記我的密碼了」, 此時系統會寄一封信到您當時註冊的 Email 信箱裡面, 裡面則附有一個臨時密碼,請您拿到密碼後用此臨時密碼登入。登入之後可以在 編輯個人檔案」裡面修改成您習慣的密碼。
logo
欣洋網路有限公司