✨AI算命大師
議題選項
議題評分
#1044553 - 2008-05-18 03:47:29 請老師幫我看一下新家格局.感恩
hsuenhua 離線
新客戶
註冊: 2008-05-18
文章數: 1
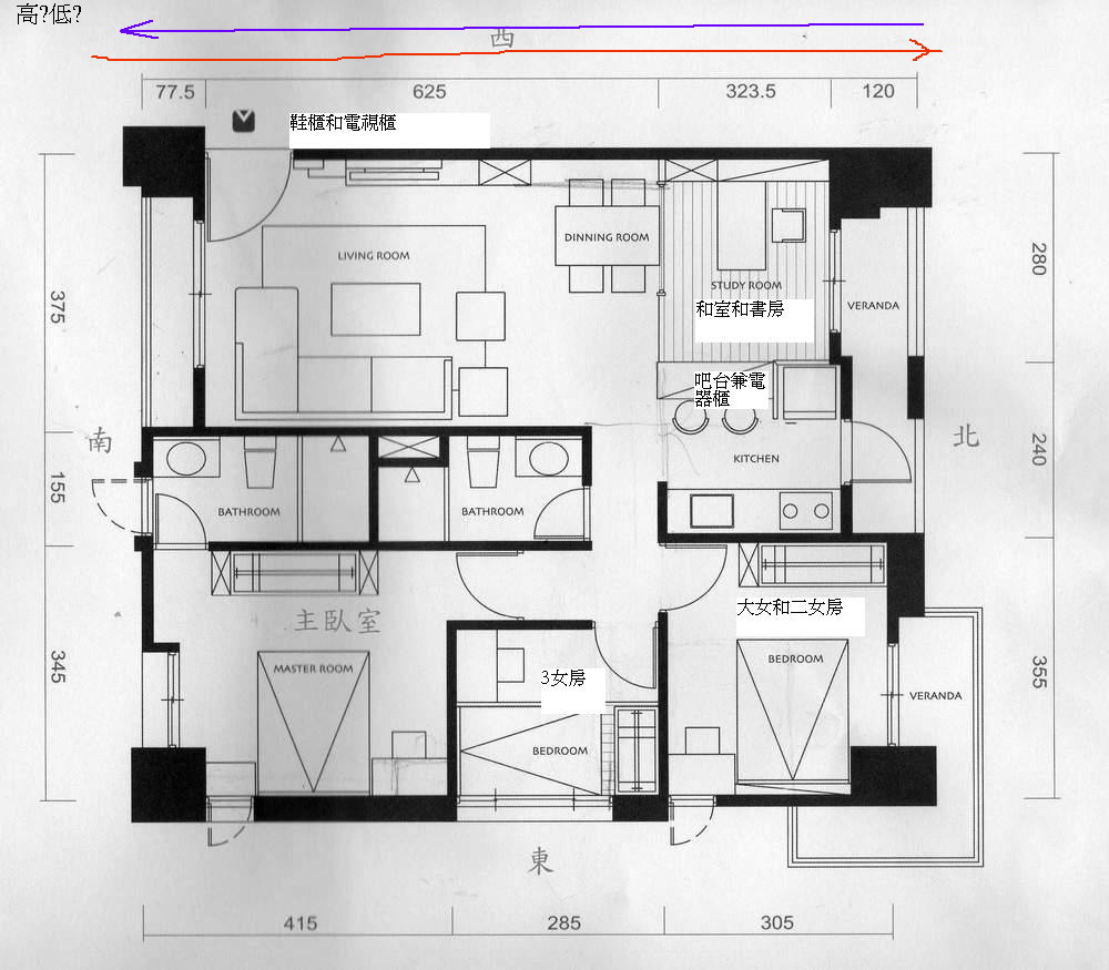
請老師幫我看一下給個指點因為廁所在中間
但房子家人都很喜歡通風良好以下訂才知有風水的問體請老師指點一下謝謝
男主人45年次.主人45年次.三個女兒71.73.78年次
請老師幫我看一下財位和文昌位謝謝


附加檔案
1.jpg


↑回到頂端↑
#1044607 - 2008-05-18 06:40:38 Re: 請老師幫我看一下新家格局.感恩
鬼徒 離線
或躍在淵
註冊: 2007-09-22
文章數: 297
感覺還不錯
妻賢子孝
長幼有序
小女得竉
功課比較差一點
_________________________
願大家為社會大眾祈福,國泰民安,風調雨順、經濟好轉。

眾人為神我為鬼
眾人為師我為徒
↑回到頂端↑
#1044805 - 2008-05-18 15:06:58 Re: 請老師幫我看一下新家格局.感恩
Nautilus 離線
潛龍勿用
註冊: 2006-04-23
文章數: 16
來自: 南投
DEAR hsuenhua,
你所附的圖只有內局,無外局,無法深入研判吉凶,且所附之圖無法確定東西南北的確切方向,風水所仰賴的是精確的指南、指北方向及角度,以你所附之圖為例,其標示之東西南北,如為確定之方向,則該宅對你們家成員而言大致上而言皆宜,唯小女稍差,但風水之研判仍須以內外局以及居住者之個人命局及相互搭配才能定吉凶,如可,煩請提供較為精確之鳥瞰圖及外局之說明,以及居住者之生辰供進一步研判。

祝福囉

beapro@gmail.com
_________________________
請大家全力支持繁體中文
↑回到頂端↑
#1045014 - 2008-05-19 06:43:12 Re: 請老師幫我看一下新家格局.感恩
黃半仙 離線

一路發發發
註冊: 2002-01-16
文章數: 18670
來自: 台北市/東湖(手機: 09351...


紫林關懷 將近說
借就資料 簡題論

廁居中宮 四歲知
確是不宜 礙康健
此宅主人 上奮佳

男主勤勞 堅持續
女主有貴 福氣人
長次幼女 分別說

老大權柄 嫌脾氣
次女上火 肺弱些
幼女得寵 語活潑
圓潤略胖 性不定

居士說書 匪疑多
權且參考 研究議




[紫林居士] 善知識 陽宅
斗數 姓名 測字 佛禪-氣功
_________________________
*觀自在 緣無攀 見如來*
有緣相遇 詩詞隱寓 請細尋思 有份當瞭

教學 與 進一步詳論者,潤金收費,請聯絡Mail 下址
Hspace03949@gmail.com

請詳我的論壇:

http://eternity.why3s.net/index.php

紫林居士 斗數命例輯..索引 .陸續增補
紫林居士 陽宅準確案例輯-2(A...;extra=page%3D1

紫林居士的一些風水圖文寓意詩.. -索引
紫林居士-12生肖分類 姓名案
↑回到頂端↑
#1051943 - 2008-06-05 16:28:16 Re: 請老師幫我看一下新家格局.感恩
小道 離線
雙喜臨門
註冊: 2003-08-23
文章數: 2424
 張貼者: hsuenhua
請老師幫我看一下給個指點因為廁所在中間
但房子家人都很喜歡通風良好以下訂才知有風水的問體請老師指點一下謝謝
男主人45年次.主人45年次.三個女兒71.73.78年次
請老師幫我看一下財位和文昌位謝謝

屋前水流如何呢? 地勢高低如何呢?左右是否還有房子? 以上是要看你的財
原則上住此屋 身體健康會漸漸走下坡 尤其注意腳 股的問題

財運不濟 看財位有用嗎?


附加檔案
12665.jpg


_________________________
奎統天命聖道顯 耀運乾坤證詮真 之 下 太極陰陽生萬物 陽光普照正乾坤 有風水 紫微斗數 擇日 八字 卜卦 姓名學之問題 或想哈拉聊天 也許你也有陰陽宅和命理之疑問 可請駕臨 http://www.khoeiaumon.com/一定盡力回覆 收費標準:服務範圍內 一切隨緣
↑回到頂端↑





本站是個命理討論的園地,如果您要問命,請務必詳閱各板板規,遵守發問規則,不要只留個生日或是命盤, 其他什麼都沒提。貼命盤的方法請特別注意算完命盤後的文字說明,不要貼個沒人看懂歪七扭八的命盤, 貼錯命盤及未遵守板規者,文章很有可能被不預警刪除 另外,如果您提了問題,而有人回覆的話,不論對與錯,請務必多上來回應論命者, 我們不歡迎那種提了問題就等人回答,也不回應的人。我們需要的是,「良好的互動」及「長期的追蹤」。
本站大多數的討論區都得要註冊才能發言,您若是要張貼討論,請務必註冊為使用者, 如果您忘了您的密碼,請在登入」的畫面, 輸入您的帳號,再按一下我忘記我的密碼了」, 此時系統會寄一封信到您當時註冊的 Email 信箱裡面, 裡面則附有一個臨時密碼,請您拿到密碼後用此臨時密碼登入。登入之後可以在 編輯個人檔案」裡面修改成您習慣的密碼。
logo
欣洋網路有限公司